Beschrijving
Robuuste geschakelde hoekwoning met inpandige garage in De Koog
Op een fijne, rustige locatie in de geliefde en kindvriendelijke wijk De Koog staat deze verrassend ruime geschakelde hoekwoning met inpandige garage. Een heerlijk gezinshuis waar ruimte, comfort en een praktische indeling perfect samenkomen, een plek waar je jarenlang met plezier kunt wonen.
De woning ligt aan een rustige weg met uitsluitend bestemmingsverkeer en kijkt uit op een leuke groenvoorziening. Hier woon je in alle rust, terwijl de dagelijkse voorzieningen letterlijk om de hoek liggen. De supermarkt, bushalte en het NS-station bevinden zich op loopafstand en binnen vijf minuten bereik je de snelweg richting Amsterdam, Alkmaar en Haarlem. Ideaal voor wie rustig wil wonen met uitstekende bereikbaarheid.
Begane grond
Je komt binnen in de hal met meterkast en toiletruimte. Vanuit hier stap je de lichte woonkamer binnen, waar de open haard direct zorgt voor sfeer en warmte. Dankzij de gedeeltelijke vloerverwarming geniet je hier bovendien van extra comfort. Een heerlijke plek voor lange avonden met familie en vrienden.
De inpandig bereikbare garage is een enorme plus: perfect voor de auto, fietsen, extra opslag of als hobbyruimte. Daarnaast is er een aparte wasruimte met opstelplaats voor de wasmachine, praktisch en netjes uit het zicht.
De achtertuin is circa 10 meter diep en gelegen op het zuidoosten. Dankzij de speelse vorm zijn er meerdere zitplekken mogelijk. Of je nu ’s ochtends wilt genieten van een kop koffie in de zon of ’s avonds lang buiten wilt zitten, hier kan het allemaal.
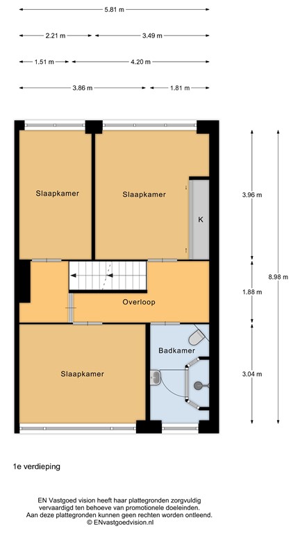
Eerste verdieping
Op de eerste verdieping bevinden zich drie zeer ruime slaapkamers, ideaal voor een gezin of voor wie extra werk- of hobbyruimte wenst. De badkamer is voorzien van een douche, toilet, wastafel en heeft vloerverwarming.
Tweede verdieping
De tweede verdieping verrast met nog een royale slaapkamer met wastafelmeubel en een grote bergruimte met opstelling van de cv-ketel ( Nefit 2024 ) Een volwaardige extra verdieping die zich perfect leent als vierde slaapkamer, thuiskantoor of tienerkamer.
Bijzonderheden
• Geschakelde 2-onder-1-kapwoning
• Inpandige garage van 24 m²
• Energielabel B
• Voorzien van zonnepanelen
• Woonoppervlakte ca. 161 m²
• Inhoud ca. 646 m³
• Gelegen in een rustige en kindvriendelijke woonomgeving
Kortom: een ruim, comfortabel en veelzijdig familiehuis, klaar voor nieuwe bewoners die hier hun volgende hoofdstuk willen beginnen.
Plattegronden
182388631_kooglaan_95_ui_tuin_20260219_bb407b.jpg
182388631_kooglaan_95_ui_begane_grond_20260219_6d1972.jpg
182388631_kooglaan_95_ui_1e_verdieping_20260219_be10e8.jpg
182388631_kooglaan_95_ui_2e_verdieping_20260219_4325c4.jpg